Продам земельный участок в Ростове-на-Дону

Земельный участок в Ростове-на-Дону
Цена 3 600 000 р.
Площадь м2
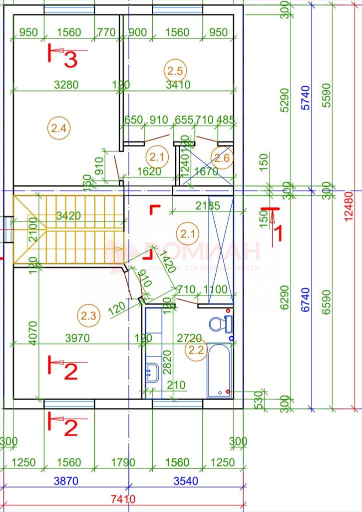
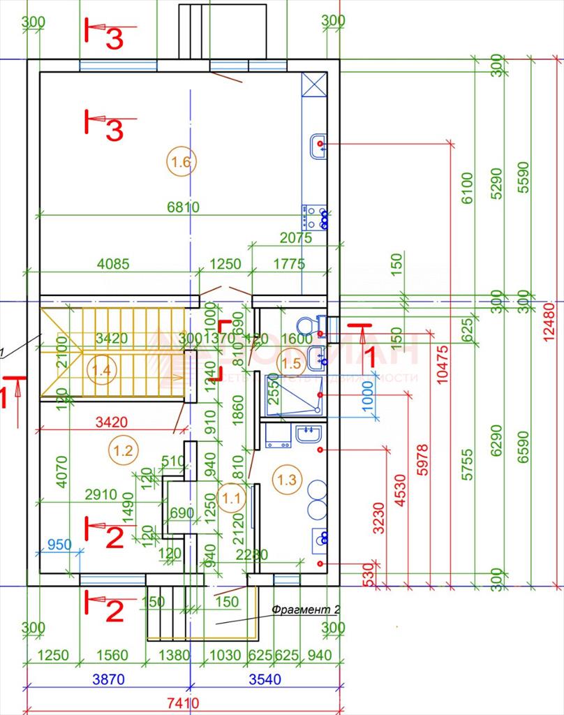
Арт. 87879912 Продаётся земельный участок 3 сотки, имеется недостроенный дом. Все коммуникации на участке: вода - городская, электричество, газ. Проект двухэтажного дома площадью 150кв.м. при покупке становится вашим. (3 комнаты, кабинет, просторная кухня-гостиная, 2 санузла, топочная). Первый этаж возведён в 2024 году, 7.5х12.5м. Цоколь бетонный. Фундамент ленточный с заглублением 1200мм. Армопояс 300х300мм. Все бетонные работы делались с использованием бетононасоса, бетон заказывался только с завода. Стены из газоблока masix толщиной 300мм, положены с перевязкой и армированием первого и каждого 3-го ряда кладки двумя прутками арматуры + дополнительно армированы оконные и дверные проемы. Армопояс в сечении 300x300мм с тремя прутками арматуры сверху и снизу. Готов септик. Развитая инфраструктура: школа № 10, 109, 91, детские садики № 11, 305 и другие., взрослая и детская поликлиника, КДЦ "Здоровье", магазины,РГПИ, рынок "Днепровский", пункты выдачи, аптеки, почта. Остановка общественного транспорта пешком минут 15. Удобная транспортная развязка. Торг присутствует. Звоните.
Объявление № 20678154
Дата подачи:
29 декабря 2024 г. 1:39
Дата обновления:
29 декабря 2024 г. 1:39
Просмотров 15 Хотите продать быстрее?

Продавец
Агентство недвижимости:
Наталья
email: tusya0078@gmail.com
Показать номер телефона
Пожаловаться
Комментарии:
Добавить